T
x
Cirque du Soleil, 1994-1997
Commercial/ Mixte
Siège social et studios de création et de diffusion
8400 2e avenue, Montréal, Québec
8400 2e avenue, Montréal, Québec
Prix d'excellence en architecture, Ordre des architectes du Québec, 1999
Prix Orange, Société Sauvons Montréal, 1997
Prix Orange, Société Sauvons Montréal, 1997
Le Cirque du Soleil a décidé de se doter de locaux permanents où loger son siège social, ses studios de répétition, ses ateliers de couture et de décors ainsi que ses entrepôts. Faisant écho à la tradition nomade des cirques, le Cirque du Soleil a choisi de s’installer sur un terrain abandonné situé près d’un ancien dépotoir municipal qui doit bientôt être transformé en parc.
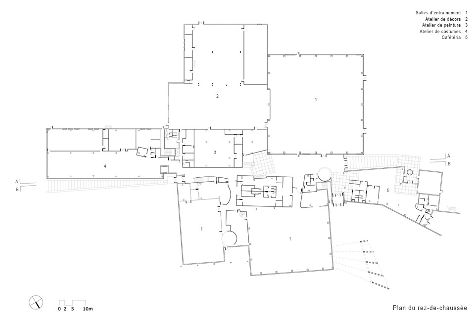
Pour le Cirque, les principales préoccupations étaient la flexibilité et la souplesse d’expansion future du bâtiment. L’architecture de l’édifice s’articule autour d’un centre administratif linéaire de quatre étages en béton. La structure d’acier à grande portée, requise dans les studios et les ateliers, se juxtapose à cette épine dorsale. Des transparences inattendues donnent une cohésion visuelle à l’ensemble et servent de lien entre les différents espaces et leurs utilisateurs.
La principale voie de circulation reliant les fonctions importantes du projet évoque une ruelle où des passerelles, des escaliers suspendus, des passages couverts et des puits de lumière offrent toute une multitude de points de vue et d’expériences spatiales. Cet espace linéaire s’ouvre sur une cafétéria à double hauteur avec une mezzanine. L'édifice est recouvert d'une enveloppe de métal et de verre qui révèle par endroits son ossature. Certains détails évoquent la structure tendue d'un chapiteau.
Pour le Cirque, les principales préoccupations étaient la flexibilité et la souplesse d’expansion future du bâtiment. L’architecture de l’édifice s’articule autour d’un centre administratif linéaire de quatre étages en béton. La structure d’acier à grande portée, requise dans les studios et les ateliers, se juxtapose à cette épine dorsale. Des transparences inattendues donnent une cohésion visuelle à l’ensemble et servent de lien entre les différents espaces et leurs utilisateurs.
La principale voie de circulation reliant les fonctions importantes du projet évoque une ruelle où des passerelles, des escaliers suspendus, des passages couverts et des puits de lumière offrent toute une multitude de points de vue et d’expériences spatiales. Cet espace linéaire s’ouvre sur une cafétéria à double hauteur avec une mezzanine. L'édifice est recouvert d'une enveloppe de métal et de verre qui révèle par endroits son ossature. Certains détails évoquent la structure tendue d'un chapiteau.
16 656m2
$27 Millions
SIMPA
$27 Millions
SIMPA