T
x
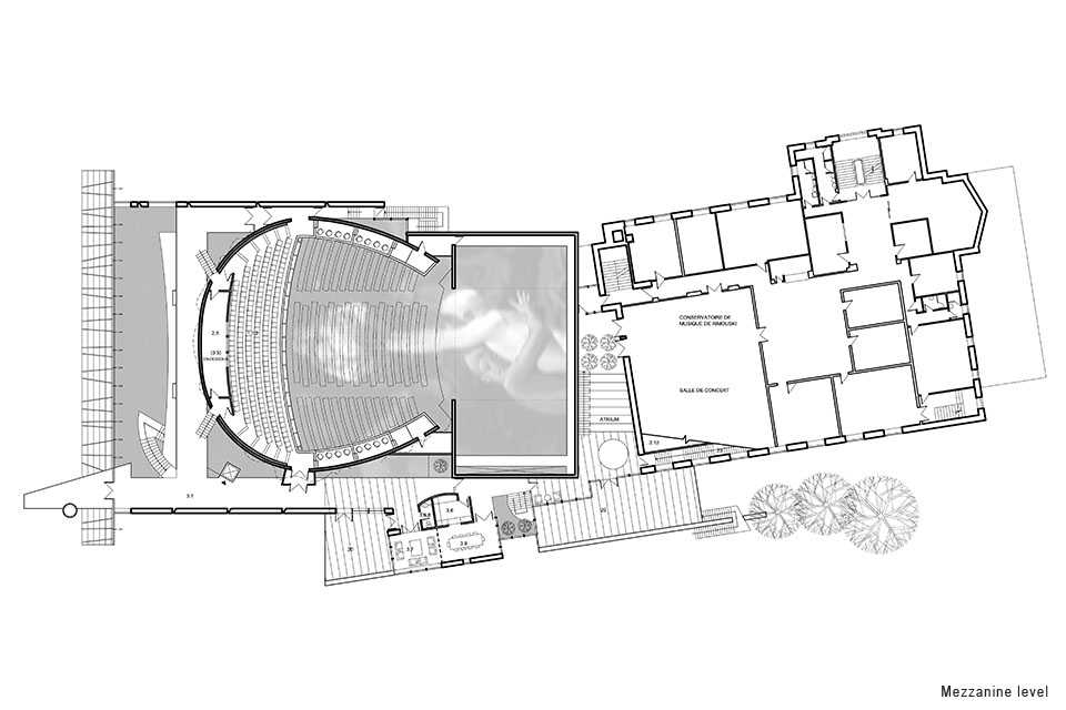
Salle de spectacle de Rimouski, 2001-2005
Culturel
Nouvelle salle de spectacle à Rimouski
25 rue Saint-Germain ouest, Rimouski
25 rue Saint-Germain ouest, Rimouski
Premier prix, concours sur invitation, 2001
Prix d’excellence de la construction d’acier de CISC-ICCA, 2006
Prix d’excellence de la construction d’acier de CISC-ICCA, 2006
Le projet visait la rénovation et l’agrandissement du conservatoire de Rimouski afin de réaffirmer la présence de la ville comme centre culturel de l’est du Québec en créant une salle de spectacle pouvant accueillir 900 spectateurs. Situé entre deux bâtiments patrimoniaux, le projet affirme une présence significative par sa frontalité sur le Parc des Vétérans et son alignement avec les grandes institutions religieuses et culturelles. Des lieux publics identifiables sont créés: l’esplanade, le parvis, le jardin de sculptures, l’agora, et la promenade exploitent les qualités intrinsèques de la ville. L’espace du foyer, orienté vers le fleuve, peut être aménagé de multiples façons, autorisant la tenue de grands ou de plus modestes événements et devenant à certains moments un lieu contrôlé pour l’accès et la détente des spectateurs. La présence de la salle au sein du grand volume du foyer est qualifiée par son enveloppe inédite. Une peau lumineuse constituée d’un tissu translucide rouge pourpre, couleur associée au théâtre, contribue à la préciosité et au mystère de la salle de spectacles, évoquant l'image d'un bijou dans son écrin.
La salle de spectacles et son foyer tiennent l’espace public, tandis que les espaces servants (privés) tels que les bureaux, salles de conférences, et ceux de support à la scène sont en continuité avec l’orientation du Centre Civique. L’opposition des deux trames du projet produit un espace inédit. Un atrium de double hauteur, qui deviendra le lieu privilégié de rencontre des étudiants et des professeurs du conservatoire, de l’école de danse et des usagers de la Salle de spectacles.
La salle de spectacles et son foyer tiennent l’espace public, tandis que les espaces servants (privés) tels que les bureaux, salles de conférences, et ceux de support à la scène sont en continuité avec l’orientation du Centre Civique. L’opposition des deux trames du projet produit un espace inédit. Un atrium de double hauteur, qui deviendra le lieu privilégié de rencontre des étudiants et des professeurs du conservatoire, de l’école de danse et des usagers de la Salle de spectacles.
4000 m2 (840 places)
$12 Millions
Ville de Rimouski Projet realisé en collaboration avec Proulx et Cyr architectes
$12 Millions
Ville de Rimouski Projet realisé en collaboration avec Proulx et Cyr architectes